
分享到
新浪微博

分享到
朋友圈

分享到
QQ空间




发布日期:2019/12/11 22:31:19 来源: 阅读量()
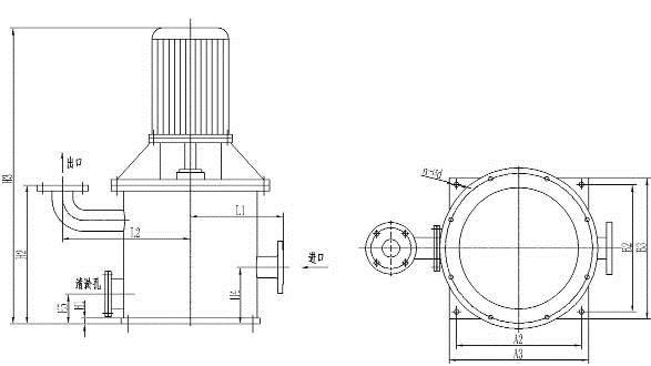
五、CCB型餐厨垃圾浆液处理泵性能参数表 流量 扬程 H 转速 n 轴功率 Pa 配带电动机 效率 η 必需 汽蚀 余量 整机 重 功率 型号 m3/h m r/min kw kw % m kg 50CCB8-20 6.4 8 9.6 21 20 19 2950 0.81 0.91 0.92 4 Y112M-2 45 48 54 3.0 3.0 3.5 200 65CCB8-50 6.4 8 9.6 53 50 48 2950 2.0 2.2 2.3 5.5 Y132M-2 47 50 55 3.0 3.0 3.5 250 65CCB10-20 8 10 12 21 20 19 1480 0.96 1.1 1.2 5.5 Y132S-4 48 51 55 3.0 3.0 3.5 240 100CCB30-25 24 30 36 26 25 24 1480 2.6 3.0 3.4 7.5 Y132M-4 65 68 70 3.0 3.0 3.0 350 125CCB150-25 90 150 180 30 25 20.6 2950 12.9 15.3 16.0 22 Y180-2 57 67 63 4.7 5.2 5.7 570 125CCB135-32 80 135 160 36 32 28 2950 13.3 18.1 19.7 30 Y200L1-2 59 65 62 4.7 5.2 5.7 630 150CCB180-25 108 180 216 27.2 25 23.2 1480 13.6 18.3 21.0 30 Y200L-4 59 67 65 3.5 4.0 4.5 920 150CCB200-32 120 200 240 34 32 29 1480 18.5 25.6 28.7 37 Y225S-4 60 68 66 3.5 4.0 4.5 970 200CCB300-25 180 300 360 28 25 22 1480 21.8 28.8 31.3 37 Y225S-4 63 71 69 3.8 4.3 4.8 1150 200CCB270-32 162 270 324 35.2 32 27.8 1480 25.9 34.6 37.2 45 Y225M-4 60 68 66 3.8 4.3 4.8 1280 250CCB550-25 330 550 630 27.1 25 22 1480 37.9 50.6 53.2 75 Y280S-4 64 74 71 5.0 5.5 6.0 1860 250CCB500-32 300 500 570 37.3 32 28.5 1480 48.4 59.7 61.5 75 Y280S-4 63 73 72 5.0 5.5 6.0 1950 300CCB650-22 390 650 750 25 22 20 980 42.2 53.4 56.8 75 Y315S-6 63 73 72 4.0 4.5 5.0 2530 六、CCB型餐厨垃圾浆液处理泵安装尺寸表 型号 L1 L2 H1 H2 H3 H4 H5 A2 A3 B2 B3 n-φd 50CCB8-20 335 460 20 490 1050 200 105 450 500 450 500 4-φ18 65CCB8-50 335 460 20 490 1050 200 105 450 500 450 500 4-φ18 65CCB10-20 335 460 20 490 1055 200 105 450 500 450 500 4-φ18 100CCB30-25 335 460 20 537 1140 200 105 450 500 450 500 4-φ18 125CCB150-25 335 460 20 550 1310 200 105 450 500 450 500 4-φ18 125CCB135-32 335 460 20 550 1420 200 105 450 500 450 500 4-φ18 150CCB180-25 430 530 25 630 1430 220 125 550 600 550 600 4-φ18 150CCB200-32 430 530 25 630 1530 220 125 550 600 550 600 4-φ18 200CCB300-25 430 570 25 780 1580 220 150 550 600 550 600 4-φ18 200CCB270-32 430 610 25 780 1650 220 150 550 600 550 600 4-φ18 250CCB550-25 450 680 25 970 1830 250 180 580 630 580 630 4-φ18 250CCB500-32 450 730 25 970 1830 250 180 580 630 580 630 4-φ18 300CCB650-22 450 840 25 1150 2360 250 180 580 630 580 630 4-φ18 进出口法兰 清淤口法兰 DN D1 D2 D3 b f n-φd DN D1 D2 D3 b f n-φd 50 φ99 φ125 φ165 20 3 4-φ18 100 φ114 φ136 φ160 20 3 6-φ12 65 φ118 φ145 φ185 20 3 4-φ18 100 φ114 φ136 φ160 20 3 6-φ12 100 φ156 φ180 φ220 22 3 8-φ18 100 φ114 φ136 φ160 20 3 6-φ12 150 φ211 φ240 φ285 24 3 8-φ22 150 φ199 φ225 φ265 20 3 8-φ18 200 φ266 φ295 φ340 24 3 8-φ22 200 φ254 φ280 φ320 22 3 8-φ18 250 φ319 φ350 φ395 26 3 12-φ22 250 φ309 φ335 φ375 24 3 12-φ18 300 φ370 φ400 φ445 26 4 12-φ22 300 φ363 φ395 φ440 24 3 12-φ22 



